Mô hình bếp ăn công nghiệp an toàn thực phẩm theo tiêu chuẩn quốc tế
Mô hình bếp ăn công nghiệp an toàn thực phẩm theo tiêu chuẩn quốc tế giúp đảm bảo cung cấp bữa ăn nhanh chóng, đầy đủ dinh dưỡng cho số lượng lớn người tiêu dùng. Vĩnh Hoàng Kitchens chuyên thi công các bếp ăn công nghiệp, thiết kế chuẩn an toàn thực phẩm, phù hợp với nhà hàng, trường học, xí nghiệp và nhiều địa điểm khác. Liên hệ ngay với chúng tôi qua số điện thoại 0934.600.467 để được tư vấn chi tiết.
Mục lục
ToggleƯu điểm mô hình bếp ăn công nghiệp
Một mô hình bếp ăn công nghiệp an toàn và bền bỉ sẽ đáp ứng nhu cầu sử dụng liên tục trong môi trường nhà bếp chuyên nghiệp, đồng thời duy trì chất lượng và hiệu suất như lúc mới. Các thiết bị được thiết kế mạnh mẽ và tiện lợi, giúp công việc trở nên dễ dàng và hiệu quả hơn.
Vĩnh Hoàng Kitchens cung cấp các mô hình bếp công nghiệp với đầu đốt mạnh mẽ nhất hiện có trên thị trường. Những thiết kế đặc biệt này đảm bảo sự phân bố nhiệt đều và truyền nhiệt trực tiếp đến các xoong nồi. Với công suất cao, các thiết bị này mang lại hiệu suất cao, đáp ứng nhu cầu sử dụng khắt khe nhất.
-

Ưu điểm mô hình bếp ăn công nghiệp
Các thiết bị bếp ăn công nghiệp được chế tạo từ thép không gỉ inox 304, đặc biệt phù hợp với những ứng dụng đòi hỏi sự bền bỉ và khắt khe như bể nấu chảo đun sôi hay nồi nấu hầm. Chất liệu inox 304 cung cấp độ bền cao và khả năng chống ăn mòn tốt, đảm bảo sự lâu dài và hiệu quả trong quá trình sử dụng. Các mối hàn được thực hiện bằng công nghệ hiện đại và quá trình đánh bóng tự động giúp đảm bảo sản phẩm có độ bền vững theo thời gian. Bếp được thiết kế để phù hợp với tất cả các kích thước chảo, bao gồm cả những chảo có đường kính rất nhỏ, đảm bảo hoạt động ổn định và an toàn cho người dùng.
Ngoài ra mô hình bếp ăn công nghiệp còn được trang bị các hệ thống cảnh báo cháy, cảnh báo rò rỉ điện,… để đảm bảo an toàn cho người sử dụng và những người xung quanh. Đa số các dụng cụ và thiết bị đều được làm từ inox được đánh bóng nên rất dễ vệ sinh, đảm bảo an toàn vệ sinh thực phẩm của một căn bếp chuẩn.
-

Bếp á 1 họng có quạt thổi
Giá liên hệĐọc tiếp -

Bếp á 3 họng
Giá liên hệĐọc tiếp -

Bếp á 3 họng quạt thổi
Giá liên hệĐọc tiếp -

Bếp á 4 họng công nghiệp
Giá liên hệĐọc tiếp -

Bếp Á công nghiệp 5 họng
Giá liên hệĐọc tiếp -

Bếp á đôi công nghiệp
Giá liên hệĐọc tiếp -

Bếp á đơn công nghiệp
Giá liên hệĐọc tiếp -

Bếp á quạt thổi 2 họng đất
Giá liên hệĐọc tiếp -

Bếp hầm đôi công nghiệp
Giá liên hệĐọc tiếp -

Bếp hầm đơn công nghiệp
Giá liên hệĐọc tiếp
Vĩnh Hoàng Kitchens thi công lắp đặt bếp công nghiệp
Vĩnh Hoàng Kitchens là đơn vị chuyên thi công, sản xuất và lắp đặt bếp công nghiệp hàng đầu tại khu vực miền Bắc. Quá trình thi công lắp đặt của chúng tôi như sau:
Bước 1: Nhu cầu sử dụng
Sự thành công của hệ thống bếp ăn công nghiệp bạn đang sử dụng hoặc sẽ sử dụng phụ thuộc rất nhiều vào nhu cầu sử dụng. Vì vậy, trước khi quyết định mua bất kỳ thiết bị nào, hãy dành thời gian để xác định rõ chức năng và nhiệm vụ của toàn bộ hệ thống bếp. Điều này sẽ giúp bạn ước lượng quy mô của hệ thống bếp cho nhà hàng của mình, cũng như biết được số lượng thiết bị cần đầu tư để đáp ứng những món ăn mà khách hàng mong muốn.
Bước 2: Khảo sát thực tế
Giai đoạn này yêu cầu sự chính xác cao. Nếu bạn chưa quen với việc đo đạc và chia tỷ lệ, hãy liên hệ với chúng tôi qua số điện thoại 0934.600.467 để được hỗ trợ. Kỹ thuật viên của chúng tôi sẽ hỗ trợ bạn trong việc tính toán diện tích cần thiết cho khu bếp và xác định vị trí lắp đặt hợp lý.
-

Vĩnh Hoàng Kitchens thi công lắp đặt bếp công nghiệp
Bước 3: Tư vấn và thiết kế
Dựa vào nhu cầu của khách hàng và các kích thước đã được đo đạc, chúng tôi có đủ thông tin để tư vấn và giúp bạn chọn thiết bị bếp công nghiệp phù hợp với mức giá hợp lý. Sau đó, đội ngũ nhân viên giàu kinh nghiệm của chúng tôi sẽ chuẩn bị bản vẽ để bạn xem xét và đưa ra ý kiến đóng góp thêm.
Bước 4: Lập dự toán
Khi chúng ta đã thống nhất về bản vẽ thiết kế, chúng tôi sẽ gửi cho bạn bảng dự toán chi phí cho các thiết bị bếp. Nếu bạn đồng ý với dự toán này, chúng ta sẽ tiến hành ký hợp đồng. Sau khi hợp đồng được ký kết, bạn sẽ nhận được bảng tiến độ thi công cho công trình thiết bị bếp công nghiệp.
Bước 5: Xuất bản vẽ và xác định nguồn điện nước
Để đảm bảo hệ thống bếp hoạt động hiệu quả và suôn sẻ, việc xác định vị trí cấp điện và nước là rất quan trọng. Chúng tôi sẽ hỗ trợ bạn trong việc xác định vị trí lắp đặt mương thoát sàn và hệ thống hút khói để tối ưu hóa hiệu suất hoạt động của toàn bộ hệ thống bếp.
Bước 6: Thi công và nghiệm thu
Kỹ thuật viên của chúng tôi sẽ thực hiện việc thi công hệ thống bếp công nghiệp theo đúng yêu cầu của khách hàng và bản vẽ thiết kế. Đồng thời, chúng tôi cũng sẽ tiến hành kết nối các thiết bị với các đầu nối điện, nước được chuẩn bị sẵn.
Khi hoàn tất việc lắp đặt thiết bị, chúng tôi sẽ cung cấp hướng dẫn sử dụng chi tiết và tư vấn về cách bảo quản thiết bị. Chúng tôi cũng sẽ thông báo các mốc thời gian cần bảo trì trước khi chính thức bàn giao hệ thống cho bạn.
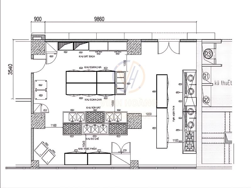
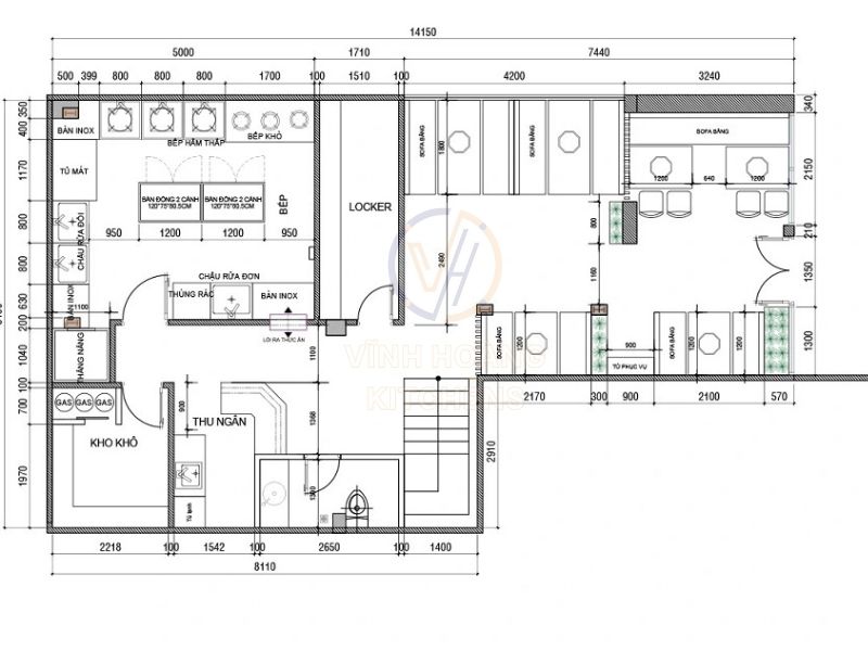
Bản vẽ thiết kế bếp ăn công nghiệp
Để khách hàng có thêm niềm tin vào cách làm việc của chúng tôi, sau đây là các bản vẽ mô hình bếp ăn công nghiệp do kỹ sư Vĩnh Hoàng Kitchens thiết kế:
Bản vẽ 2D
Bản vẽ 3D
Trên đây là những chia sẻ mới nhất của Vĩnh Hoàng Kitchens về mô hình bếp ăn công nghiệp. Chúng tôi hy vọng rằng, bạn sẽ là khách hàng tiếp theo chọn Vĩnh Hoàng Kitchens là nhà đồng hành đáng tin cậy cho hệ thống bếp ăn của bạn. Hãy liên hệ ngay để được tư vấn hỗ trợ trong hôm nay!
Bài viết liên quan
Thiết kế bếp ăn công nghiệp đạt chuẩn như thế nào?
Bếp ăn công nghiệp cần có thiết kế khoa học, tối ưu để phục vụ lượng lớn khách hàng cùng lúc, vì vậy một gian bếp không được sắp xếp...
Bếp ăn công nghiệp là gì? Phân biệt bếp ăn công nghiệp và bếp ăn gia đình
Bếp ăn công nghiệp, hay còn gọi là bếp ăn tập thể, là nơi phục vụ lượng lớn người tiêu dùng, đặc biệt vào giờ cao điểm. Để đáp ứng...
Nguyên tắc bếp công nghiệp 1 chiều chuẩn nhất hiện nay
Bếp công nghiệp 1 chiều là giải pháp tối ưu cho các cơ sở như nhà hàng, khách sạn, trường học và bệnh viện, giúp đảm bảo an toàn thực...
Tiêu chuẩn bếp ăn công nghiệp hiện đại và chuẩn nhất 2025
Bếp ăn công nghiệp hiện đại với công suất lớn và hiệu suất cao là giải pháp lý tưởng cho các nhà hàng, khu công nghiệp và khách sạn. Vĩnh...








